REHAU Euro-Design 70 PVC windows – reliable quality and energy efficiency
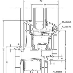
REHAU Euro-Design 70 windows are a five‑chamber PVC profile system with a 70 mm installation depth, providing optimal thermal insulation, sound protection and long‑term durability.
Euro-Design 70 is an ideal choice for those who want a reliable window solution with a good price‑to‑quality ratio, without compromising on energy efficiency or design options.
Main benefits
-
Energy efficiency:
Uf value up to 1.3 W/m²K with steel reinforcement, helping reduce heating costs. -
Sound insulation:
Up to 44 dB, ensuring quiet and comfortable living even in urban environments. -
Security:
Available burglary protection up to RC2 security class. -
Design variety:
A wide range of colors and decorative finishes, including wood textures and modern tones. -
Durability:
The glossy profile surface is easy to maintain and retains its appearance for many years.
Comparison with other REHAU systems
| Feature | Euro-Design 70 | SYNEGO | ARTEVO |
|---|---|---|---|
| Energy efficiency (Uf) | Up to 1.3 W/m²K | Up to 0.94 W/m²K | Up to 0.79 W/m²K |
| Sound insulation | Up to 44 dB | Up to 46 dB | Up to 48 dB |
| Security class | Up to RC2 | Up to RC3 | Up to RC3 |
| Design options | Wide selection | Wide selection | Very extensive |
| Sustainability | PVC profile | PVC profile | Fiberglass profile |
Where are Euro-Design 70 PVC windows most suitable?
- Private homes and apartments: A reliable solution with good insulation and security.
- Renovation projects: Suitable for replacing existing windows and improving energy efficiency.
- Commercial buildings: A practical and economical solution with broad design options.
Frequently asked questions
How long do Euro-Design 70 PVC windows last?
When properly installed and maintained, they last for several decades without losing their performance.
Are they suitable for renovation?
Yes, Euro-Design 70 profile windows are excellent for both new buildings and modernization of existing ones.
What color options are available?
A wide selection of decorative finishes is available – from classic wood textures to modern tones.
Why choose REHAU Euro-Design 70?
Choosing REHAU Euro-Design 70 windows means getting a reliable, energy‑efficient and aesthetically pleasing solution that provides comfort, security and long‑term sustainability at an affordable price.
Book a consultation
Request a consultation and discover how Euro-Design 70 windows can improve your home!
Technical data
Installation depth: 70 mm
Profile chambers: 5
Thermal insulation coefficient Uf: up to 1.3 W/m²K
Sound insulation: up to 44 dB
Security class: up to RC2
Maximum glazing thickness: up to 41 mm



